Baxi Duo-tec Compact 28 (dažnai žymimas kaip E28 arba 28 GA) yra sieninis dujinis kondensacinis katilas, skirtas patalpų šildymui ir momentiniam karšto vandens ruošimui. Jis pasižymi itin kompaktiškais matmenimis, todėl idealiai tinka montuoti siaurose erdvėse, pavyzdžiui, virtuvės spintelėse.
Pagrindinės charakteristikos
Šis modelis sukurtas vidutinio dydžio būstams, kuriuose yra apie 10–15 radiatorių ir vienas vonios kambarys.
- Galia: Karšto vandens ruošimui naudojama 28 kW galia, o šildymui – iki 24 kW.
- Efektyvumas: Katilo naudingumo koeficientas siekia iki 110 %. Jis turi A klasės ErP reitingą tiek šildymui, tiek vandens ruošimui.
- Vandens ruošimas: Momentinis srautas pasiekia 16,1 l/min (prie ΔT=25°C) arba 11,5 l/min (prie ΔT=35°C).
- Moduliacija: Platus moduliacijos santykis 1:7 leidžia katilui rečiau įsijungti/išsijungti, taip taupant energiją ir didinant ilgaamžiškumą.
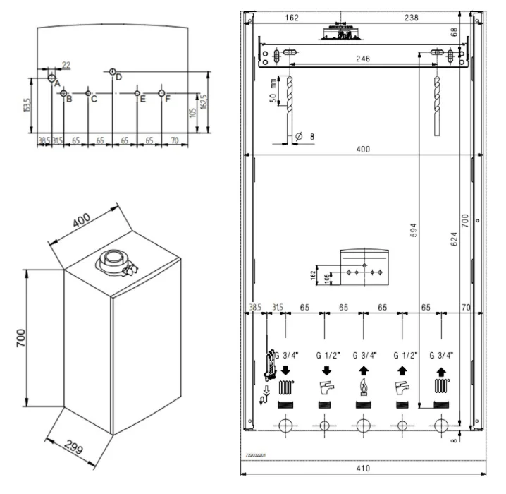
Techninės specifikacijos
- Matmenys: 700 mm (aukštis) x 400 mm (plotis) x 299 mm (gylis).
- Svoris: 34 kg.
- Triukšmo lygis: Viduje veikia tyliai, garso galios lygis – apie 48 dB.
- Dujų kontrolė: Integruota GAC (Gas Adaptive Control) sistema automatiškai reguliuoja degimo procesą pagal dujų kokybę ir kamino ilgį.
Funkcijos ir privalumai
- Valdymas: Skaitmeninis valdymo skydelis su apšviečiamu LCD ekranu. Katilas suderinamas su išmaniaisiais termostatais, pavyzdžiui, Baxi Mago.
- Apsaugos sistemos: Turi integruotą apsaugą nuo užšalimo (veikia iki -5°C), siurblio blokavimo prevenciją ir hidraulinį slėgio jungiklį.
- Medžiagos: Šilumokaitis ir degiklis pagaminti iš nerūdijančio plieno (AISI 316L).
- Montavimas: Galimas montavimas ir lauke (naudojant specialų papildomą gaubtą) bei integracija su saulės kolektorių sistemomis.

Atsiliepimai
Atsiliepimų dar nėra.